



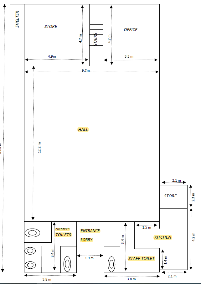
Facilities

Areas highlighted in Yellow are available to the hall user.
Amenities:
- Disabled Toilets
- Small functional kitchen
- Parking for up to 6 cars
- Field to the rear
- Folding tables and stacked chairs available.
Hall Hire
The HQ is available for hire for a minimum of two hours (and one hour blocks thereafter). For details and prices please see the Hire our Hall page.
Please note: at the end of your hire you are required to clean and tidy the hall and remove ALL your rubbish. Failure to do so will result in the loss of the deposit.
For other booking enquiries please email: bookings@1stmaldenscouts.org.uk